Dự án Đảo Kim Quy

TỔNG QUAN

Đảo Kim Quy là một dự án khu đô thị sinh thái cao cấp độc đáo, tọa lạc trên Cù lao Tân Vạn, TP. Biên Hòa, tỉnh Đồng Nai. Với bốn mặt giáp sông Đồng Nai, dự án không chỉ mang đến không gian sống biệt lậptrong lành mà còn sở hữu vị trí chiến lược, kết nối thuận tiện đến TP.HCM và các khu vực lân cận.

Dự án Đảo Kim Quy

TỔNG QUAN DỰ ÁN

Tên dự án:

Đảo Kim Quy (Cù Lao Tân Vạn/Centrial Island).

Vị trí:

Tọa lạc tại Cù lao Tân Vạn, TP. Biên Hòa, Đồng Nai, với bốn mặt giáp sông Đồng Nai, tạo thành một “đảo” biệt lập duy nhất trong khu vực.

Chủ đầu tư và phát triển:

Dự án được phát triển bởi TTC Land (Công ty Cổ phần Địa ốc Sài Gòn Thương Tín) thuộc Tập đoàn TTC.

Quy mô dự án:

Dự án có tổng diện tích 48 hecta.

Mật độ xây dựng:

Với mật độ xay dựng 55%.

Loại hình sản phẩm:

Bao gồm khoảng 571 căn nhà ở và lô đất ở, đa dạng các loại hình như:

  • Nhà phố sân vườn
  • Biệt thự song lập
  • Biệt thự đơn lập

Tổng vốn đầu tư:

Khoảng 7.200 tỷ đồng.

Pháp lý:

Dự án pháp lý minh bạch, quy hoạch 1/500, và giấy phép xây dựng đã được cấp. Sổ đỏ từng lô cấp vào cuối năm 2020.

Tiến độ dự án:

Chủ đầu tư đang xúc tiến thi công móng các căn nhà và dự kiến bàn giao vào năm 2026.

VỊ TRÍ

Tọa lạc trên cù lao được bao bọc bởi sông Đồng Nai, Đảo Kim Quy sở hữu lợi thế hiếm có về phong thủy và không gian sống. Dự án nằm tại cửa ngõ giao thương của tam giác kinh tế TP.HCM – Đồng Nai – Bình Dương, kết nối dễ dàng với các tuyến giao thông huyết mạch.

Dự án Đảo Kim Quy

3- 5 Phút

  • Chợ Ngãi Thắng
  • Trường Tiểu Học Ngãi Thắng
  • Bến xe Tân Vạn – Làng Đại Học
  • Khu du lịch Thủy Châu
  • Cảng Bĩnh Lợi

 

10 Phút

  • Vincom Plaza Biên Hòa 
  • Trường Đại Học Lạc Hồng
  • Trường THCS Trưng Vương Hồng
  • Bệnh Viện Đại Học Y Dược Shing Mark

 

15 Phút

  • Khu công nghiệp Biên Hòa 2
  • Siêu thị Big C Đồng Nai
  • Khu du lịch Bửu Long
  • Cù Lao Phố
  • Khu công nghiệp Long Bình

20 – 30 Phút

  • Ga Biên Hòa
  • Metro Bến Thành – Suối Tiên
  • Trường THPT Nguyễn Hữu Cảnh
  • Siêu thị Mega Market
  • Bệnh viện Đa Khoa Thống Nhất
  • TP. Thủ Đức

MẶT BẰNG

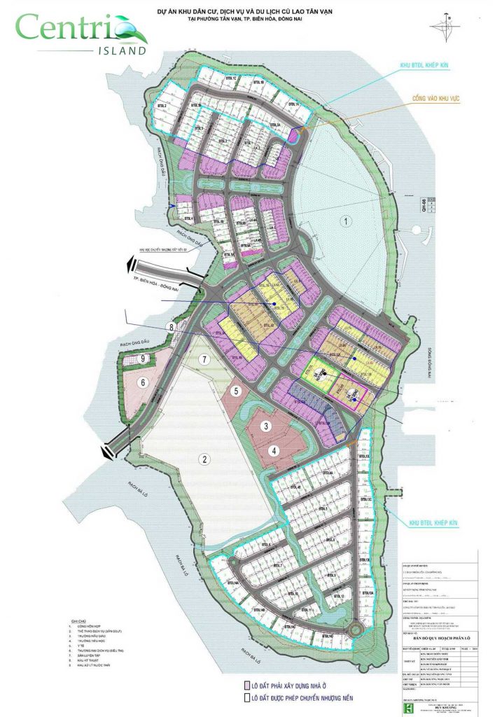
Mặt bằng dự án Centria Island - Đảo Kim Quy Đồng Nai

TIỆN ÍCH

Centria Island có tổng diện tích 48 ha, được quy hoạch bài bản với mật độ xây dựng khoảng 55% và 11,4 ha dành cho mảng xanh, tạo không gian sống sinh thái trong lành.

  • Phân khu chức năng: Dự án được chia thành nhiều phân khu với các chức năng riêng biệt, bao gồm:
    • 206 căn nhà phố liền kề: Diện tích 6x20m (120 m²), xây dựng 1 trệt 2 lầu 1 tum, tổng diện tích sàn khoảng 252 m², 4 phòng ngủ.
    • 200 căn biệt thự song lập: Diện tích 10x25m (250 m²), xây dựng 2.5 tầng, tổng diện tích sàn khoảng 374,81 m², 5 phòng ngủ + 1 phòng gia nhân.
    • 165 căn biệt thự đơn lập: Diện tích 350-500 m², xây dựng 2.5 tầng, tổng diện tích sàn khoảng 344,1 m², 5 phòng ngủ + 1 phòng gia nhân.
    • Khu sân golf: Diện tích 4,8 ha, thiết kế tiêu chuẩn quốc tế .
    • Mảng xanh và mặt nước: Công viên ven sông, đường dạo bộ, hồ cảnh quan được phân bổ đều khắp dự án, đảm bảo không gian sống hài hòa với thiên nhiên.

Mặt bằng tổng thể: Dự án được thiết kế theo phong cách tân cổ điển hiện đại, tận dụng lợi thế 4 mặt giáp sông (sông Đồng Nai ở phía Bắc và Đông, rạch Bà Lồ ở phía Nam, rạch Ông Dầu ở phía Tây). Các căn nhà phố và biệt thự được bố trí hướng về trung tâm thương mại hoặc sông, tối ưu hóa tầm nhìn và giá trị phong thủy.

Mặt bằng tiện ích phân khu Centria Island - Đảo Kim Quy

TIỆN ÍCH NỘI KHU

TIỆN ÍCH NGOẠI KHU

THIẾT KẾ

Quy cách xây dựng biệt thự đơn lập khu compound Centria Island - Đảo Kim Quy
Quy cách xây dựng nhà phố liền kế Centria Island Tân Vạn - Đảo Kim Quy

THƯ VIỆN

Đảo Kim Quy – Nơi hội tụ phong cách sống xanh và hiện đại

Trong khi nhịp sống luôn phải hổi hã theo dòng người hiện nay, thì tại [...]

Vị trí Đảo Kim Quy – Lợi thế đầu tư giữa lòng tam giác kinh tế Khu Đông

ĐẢO KIM QUY – BIỂU TƯỢNG SỐNG THỊNH VƯỢNG GIỮA LÒNG TAM GIÁC KINH TẾ [...]

Sự ra mắt Đảo Kim Quy đô thị sinh thái giữa lòng Đồng Nai

Công bố thương hiệu Đảo Kim Quy – Biểu tượng mới của đô thị sinh [...]

BOOKING NOW

BOOKING NOW 

ĐĂNG KÝ TƯ VẤN – ĐẶT LỊCH HẸN THAM QUAN MIỄN PHÍ

Cám ơn quý khách hàng đã quan tâm đến dự án.

 





    BẢNG GIÁ VÀ PHƯƠNG THỨC THANH TOÁN

    PHƯƠNG THỨC THANH TOÁN

    LIÊN HỆ

    ĐĂNG KÝ TƯ VẤN – ĐẶT LỊCH HẸN THAM QUAN MIỄN PHÍ

    Cám ơn quý khách hàng đã quan tâm đến dự án.